Bosch PPP6A6I40O Handleiding
Hier is de Bosch PPP6A6I40O (Fornuis) gebruikershandleiding. 28 pagina's in taal met een gewicht van 4,884,650.0 Mb. Als u geen antwoorden op uw probleem kunt vinden Vraag het onze community.
Pagina 1/28

*8001328123*
8001328123 (050813)
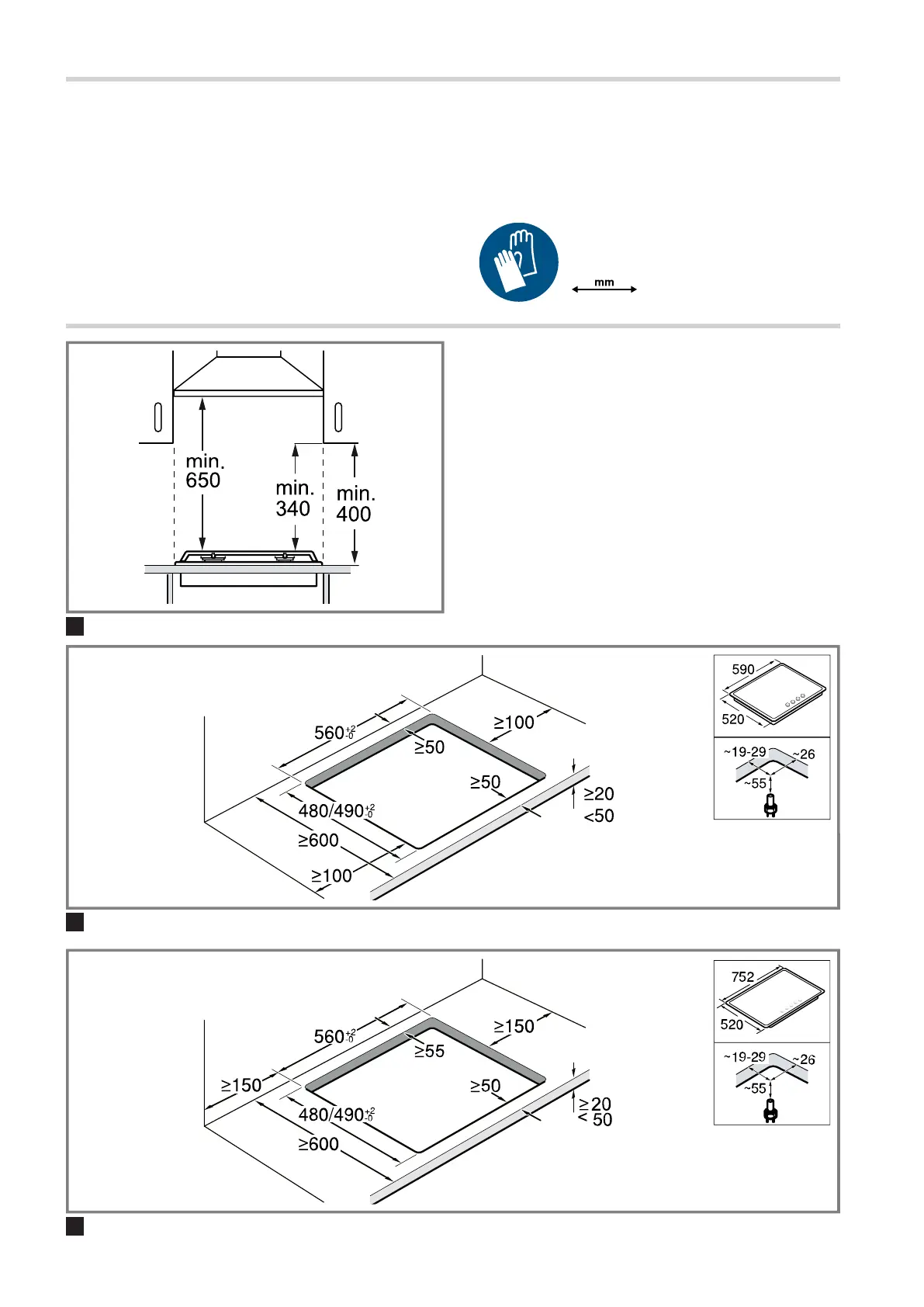
de Montageanleitung
en Installation instructions
es Instrucciones de montaje
el
Οδηγίες εγκατάστασης
fr Notice d'installation
hu Telepítési útmutató
it Istruzioni d'installazione
nl Installatie-instructies
pl
Instrukcje montażu
pt Instruções de instalação
ro Instrucţiuni de instalare
1
2
3
1
Probleemoplossing Bosch PPP6A6I40O
Als je de handleiding al zorgvuldig hebt gelezen maar geen oplossing voor je probleem hebt gevonden, vraag dan andere gebruikers om hulp
Specificaties
| Merk: | Bosch |
| Categorie: | Fornuis |
| Model: | PPP6A6I40O |