Chief
Flat panel steun
PCM2306
Chief PCM2306 Handleiding
Hier is de Chief PCM2306 (Flat panel steun) gebruikershandleiding. 2 pagina's in taal Engels met een gewicht van 0.2 Mb. Als u geen antwoorden op uw probleem kunt vinden Vraag het onze community.
Pagina 1/2

I N S T A L LA T I O N I N S T R U C T I O N S
Chief Manufacturing, a products division of Milestone AV Technologies
8401 Eagle Creek Parkway, Savage, MN 55378
P: 800.582.6480 / 952.894.6280 F: 877.894.6918 / 952.894.6918
8804-000211 RevC
©2009 Milestone AV Technologies,
a Duchossois Group Company
07/09
ALL COMPONENTS MUST BE SECURELY FASTENED TO A
STRUCTURAL MEMBER CAPABLE OF SUPPORTING 4
TIMES THE COMBINED WEIGHT OF ALL COMPONENTS
PLUS THE EQUIPMENT BEING MOUNTED. IF IT CANNOT
SUPPORT THIS WEIGHT, THE STRUCTURE MUST BE
REINFORCED.
THE MAXIMUM WEIGHT TO BE INSTALLED ON THE
MOUNT IS
200
POUNDS (
90.72
KG).
PSB-2306
PLASMA/LCD DISPLAY MOUNTING BRACKET
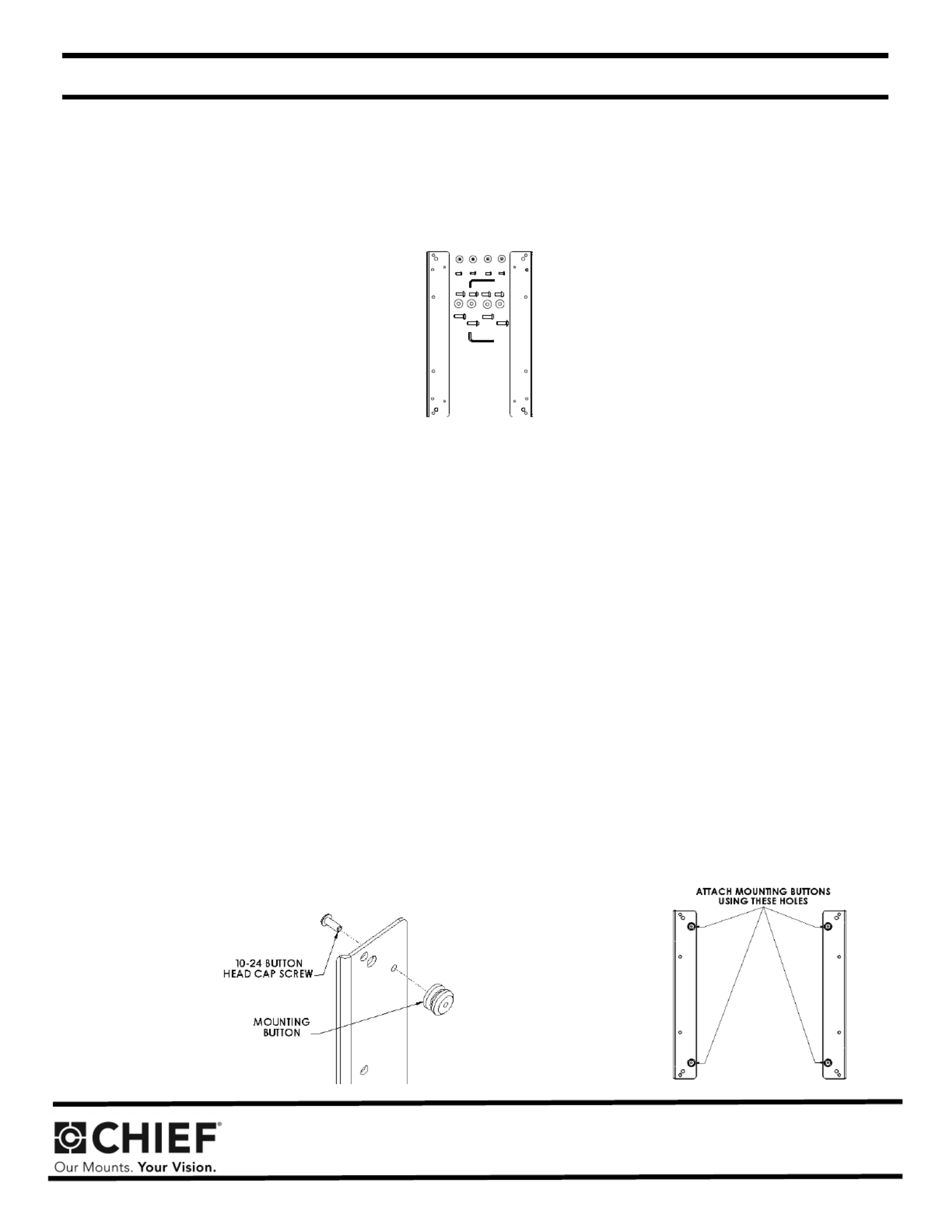
Prior to assembly, unpack carton completely and verify contents.
If you are missing any of the following components, please contact Customer Service.
(2) Interface Brackets (4) Mounting Buttons - Tapped
(4) 10-24 X .5 Button Head Cap Screws (4) M8 x 25 mm Button Head Cap Screw
(4) .875 x .33 x .375 Nylon Spacer (4) M8 x 20 mm Button Head Cap Screw
(1) M5 Allen Key (1) 1/8” Allen Key
BEFORE PROCEEDING, READ INSTALLATION INSTRUCTIONS COMPLETELY
PLASMA/LCD DISPLAYS ARE EXTREMELY FRAGILE.
1. Using a 10-24 button head cap screw inserted from back side of bracket, secure mounting button,
with chamfered hole of mounting button (larger surface) facing bracket, to bracket (four places) (see
Figure 2 & Figure 3). Make sure bends of interface bracket face away from buttons.
CAUTION!
Figure 1
WARNING!
Figure 2 Figure 3
Probleemoplossing Chief PCM2306
Als je de handleiding al zorgvuldig hebt gelezen maar geen oplossing voor je probleem hebt gevonden, vraag dan andere gebruikers om hulp
Specificaties
| Kleur van het product: | Zwart |
| Breedte: | 414 mm |
| Diepte: | 158 mm |
| Hoogte: | 875 mm |
| Materiaal behuizing: | Metaal |
| Montagewijze: | Plafond |
| Geschikt voor schermmaten: | 42 - 60 " |
| Maximale gewichtscapaciteit: | 90.7 kg |
| Montage interface compatibiliteit (min): | 200 x 200 mm |
| Montage interface compatibiliteit (max): | 200 x 200 mm |
| Bereik kantelhoek: | -25 - 5 ° |
| Maximale schermgrootte: | 60 " |
| Minimale schermgrootte: | 42 " |