Entes
Niet gecategoriseerd
EVM-05C-96
Entes EVM-05C-96 Handleiding
Hier is de Entes EVM-05C-96 (Niet gecategoriseerd) gebruikershandleiding. 8 pagina's in taal Engels met een gewicht van 2,106,980.0 Mb. Als u geen antwoorden op uw probleem kunt vinden Vraag het onze community.
Pagina 1/8

1
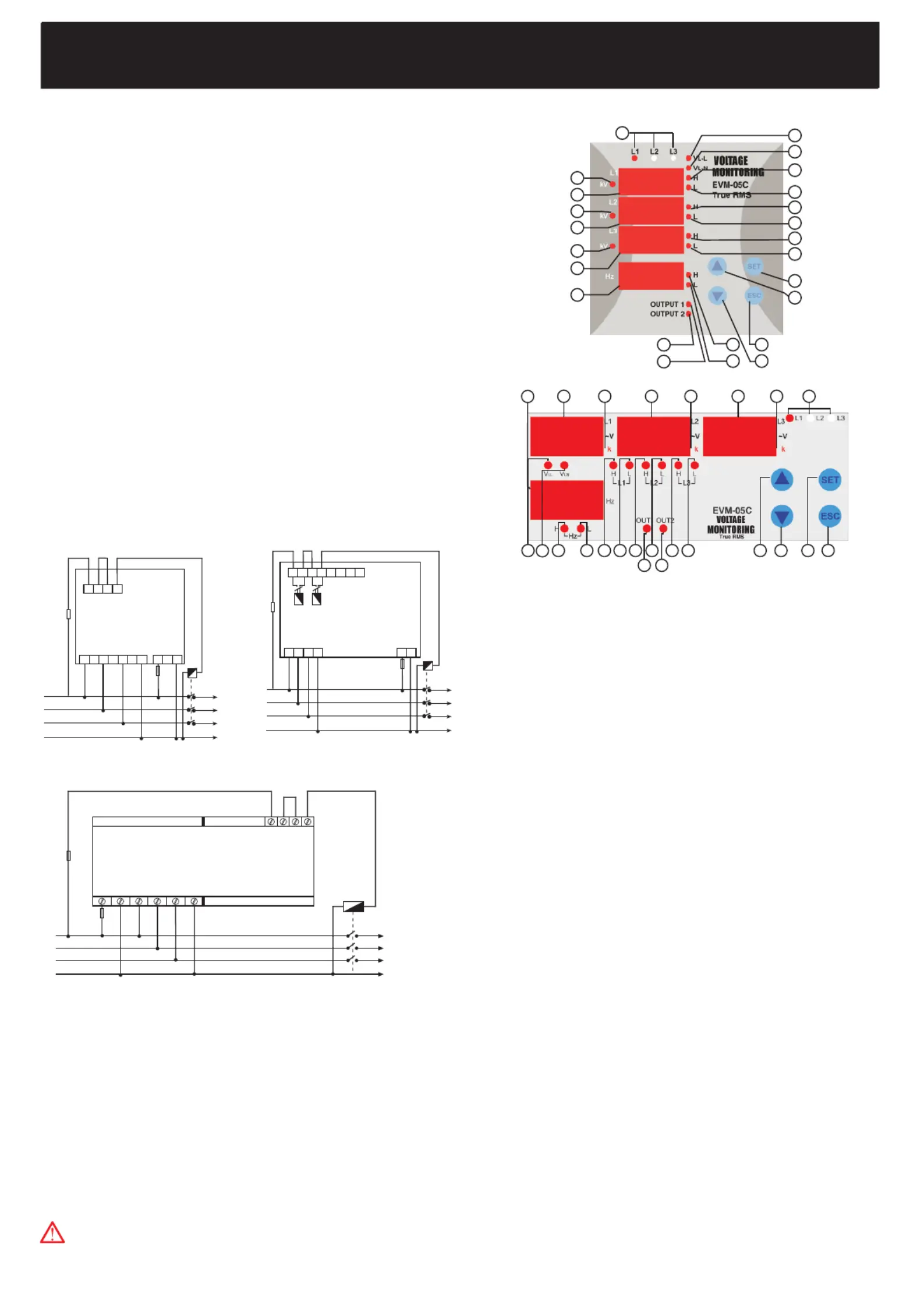
Connection Diagram
1
1
1
2
2
2
2
2
3
3
3
3
4
4
5
6
6
7
7
7
7
8
8
VOLTAGE MONITORING
EVM-05C
1... Phase LEDs:The LEDs turn on when all phases are connected to
the system and correct phase sequence.(If phase sequence warning
is activated and there is a false phase sequence,these LEDs blink.)
2... kV LEDs of 1.Display: If this LED turns on, the unit of voltage is kV
3... Display of L-1 Phase:It shows L-1 phase-neutral voltage and L1-L2
phase-phase voltage.
4... kV LEDs of 2.Display: If this LED turns on, the unit of voltage is kV
5... Display of L-2 Phase:It shows L-2 phase-neutral voltage and L2-L3
phase-phase voltage.
6... kV LEDs of 3.Display: If this LED turns on, the unit of voltage is kV
7... Display of L-3 Phase:It shows L-3 phase-neutral voltage and L3-L1
phase-phase voltage.
8... Frequency Display:The frequency is measured from L-1 phase
9... Output Relay 2 LED
10...Output Relay 1 LED
11...Low Frequency Warning LED
12...High Frequency Warning LED
13...ESC Button
14...DOWN Button
15...SET Button
16...UP Button
17...Low Voltage Warning LED of L-3 Phase (Low voltage warning of L3-
L1 when phase-phase measurement is selected)
18...High Voltage Warning LED of L-3 Phase (High voltage warning of L3-
L1 when phase-phase measurement is selected)
19...Low Voltage Warning LED of L-2 Phase (Low voltage warning of L2-
L3 when phase-phase measurementis selected)
20...High Voltage Warning LED of L-2 Phase (High voltage warning of L2-
L3 when phase-phase measurementis selected)
21...Low Voltage Warning LED of L-1 Phase(Low voltage warning of L1-
L2 when phase-phase measurement is selected)
22...High Voltage Warning LED of L-1 Phase(High voltage warning of L1-
L2 when phase-phase measurement is selected)
23...V L-N LED: Phase-Neutral Voltage
24...V L-L LED: Phase-Phase Voltage
Precautions For Installation And Safe Use
- Failure to follow those instructions will result in death or serious injury.
- Disconnect all power before working on equipment.
- When the device connected to the network, do not remove the front panel
- Do not try to clean the device with solvent or the like.Only clean the device
with dried cloth.
- Verity correct terminal connections when wiring.
- Electrical equipment should be serviced only by your component seller.
- Only for rack panel mounting.
- The fuse should be used F type and should be 1A
INDEX
Connection Diagram................................................................................
Precautions For Installation And Safe Use...................................................
Front Panel And Usage of Buttons............................................................
General Information...............................................................................
Properties..............................................................................................
Specific Functions of Buttons...............................................................
Setpoints
(SP Menu) ................................................................................
High And Low Setpoints
(SP Hi, SP Lo Menu) ..............................................
High And Low Setpoints For 1st Phase
(Hi L-1, Lo L-1 Menus) .............................
High And Low Setpoints For 2nd Phase
(Hi L-2, Lo L-2 Menus) ..........................
High And Low Setpoints For 3rd Phase
(Hi L-3, Lo L-3 Menus).............................
Hysteresis Values For High And Low Setpoints
(Hi Hys, Lo Hys Menus).......
Delay-On Time For High And Low Setpoints
(Hi ond, Lo ond Menus)...........
Delay-Off Time For High And Low Setpoints
(Hi ofd, Lo ofd Menus).....................
Frequency Setpoints Menu
(SP Frq Menüsü) ..................................................
Phase Sequence Menu........................................................................
Latch Function Menu.............................................................................
Instant Tripping Menu............................................................................
Voltage Transformer Ratio Menu...........................................................
Connection Type Settings Menu...........................................................
Clearing Max And Min.Values Menu......................................................
User Password Menu............................................................................
Technical Specifications...........................................................................
Front Panel And Usage of Buttons
~
U
n
Out 1 Out 2
16 15
1
8
6742 53
23
24 22 211112 20 19
10 9
18 17
13
14
1
2
3
4
5
6
7
8
9
10
11
12 13
14
16
15
17
18
19
20
21
22
23
24
N
L1
L2
L3
~
U
n
NO
Out 1
NO
Out 2
PR-16PR-19
PK-26
Out 1
Out 2
N
L1
L2
L3
~
U
n
No responsibility is assured by the manufacturer or any of its
subsidiaries for any consequences arising out of the use of this
material.
Relay Output
Voltage Measuring
Input
Auxiliary
Supply
5
L1
L2
L3
N
6 7 8
1 A
9 10
System
1 2
3 4
Choose according to
contactor current
Choose according to
contactor current
Relay Output
Voltage Measuring
Input
Auxiliary
Supply
1
L1
L2
L3
N
2 3 4
1 A
13 14
System
32 31
30 29 28 27 26 25
System
N
L1
L2
L3
L1
L2
L3
N
Voltage Measuring
Input
Auxiliary
Supply
Relay Output
Choose according to
contactor current
1 A
Probleemoplossing Entes EVM-05C-96
Als je de handleiding al zorgvuldig hebt gelezen maar geen oplossing voor je probleem hebt gevonden, vraag dan andere gebruikers om hulp
Specificaties
| Merk: | Entes |
| Categorie: | Niet gecategoriseerd |
| Model: | EVM-05C-96 |