GE JXS37WW Handleiding
Hier is de GE JXS37WW (Fornuis) gebruikershandleiding. 1 pagina's in taal Engels met een gewicht van 0.1 Mb. Als u geen antwoorden op uw probleem kunt vinden Vraag het onze community.
Pagina 1/1

Installation Instructions
Backsplash Kit
Tools Required:
#2 Phillips screw driver
Installing the Kit
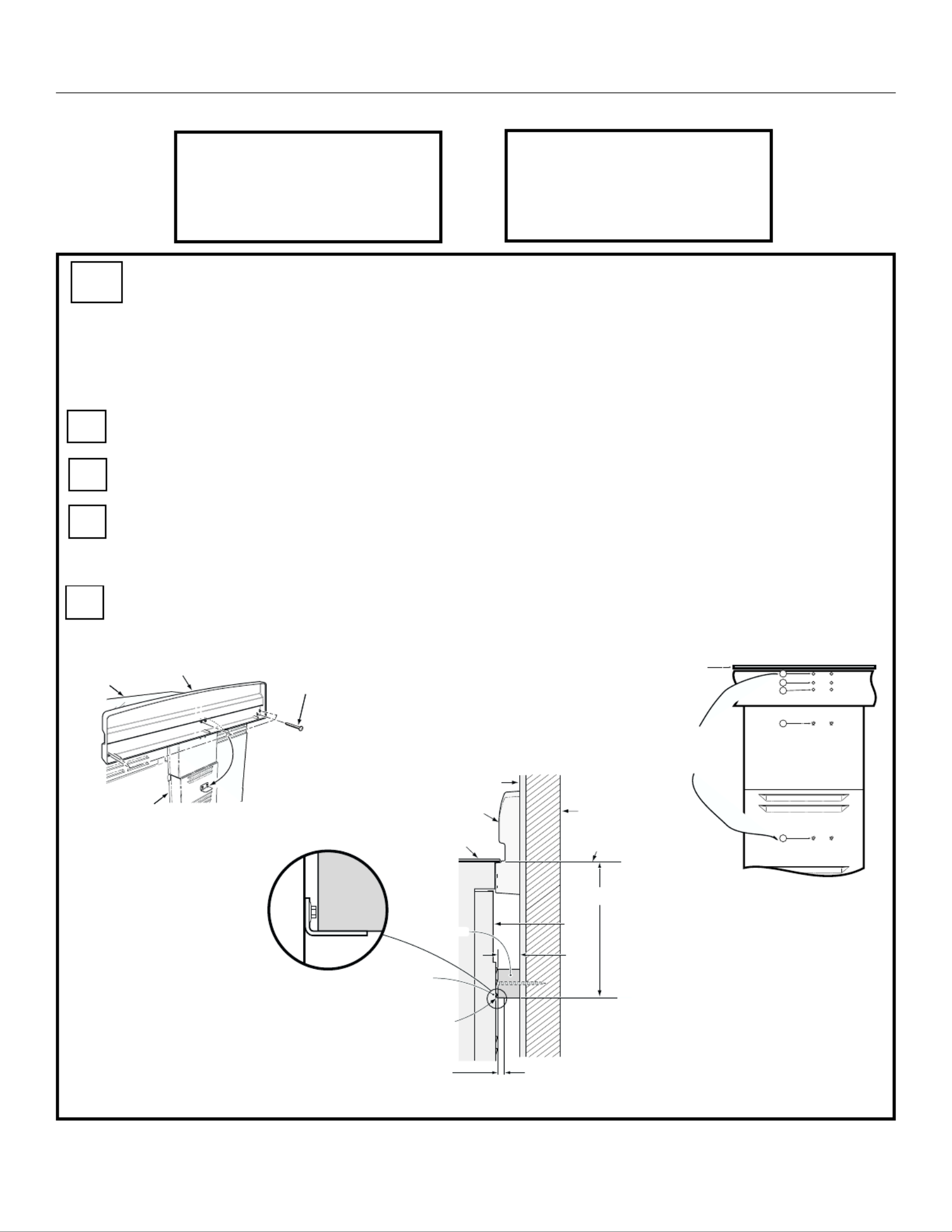
Attach the assembly to rear of the range to the five holes above the louvers using the 5 screws
located in the pack. See Figure 1
A
A1
A2
Attach the backsplash assembly to the rear of the range prior to installing the range in the
countertop opening.
A3
Pub. No. 31-10452
229C4053P426
If the backsplash is being attached to a Drop-In range, the anti-tip bracket must be moved to
position 5 and proper attachments to the wall must be made to assure that the anti-tip bracket
engages below the attachment. The attachment must be able to withstand 200 lbs of force at the
engagement point. Refer to the Figure 2 below.
A4 Refer to the range Installation Instructions to place the range in the countertop opening and
perform all tests required.
The purpose of the backsplash kit is to fill the gap between the back of the range and the wall, when
the countertop opening is cut to a 25” depth.
NOTE: This kit supplies a spacer that is used when a body side kit is used in conjuction with this kit.
Keep this part for that type of application.
1/4” Hex head Driver
Parts Supplied:
Backsplash Assembly
5 Screws
1 Spacer
Fig. 1
Fig. 2
1
2
3
4
5
Anti-Tip Bracket Location
( Rear of Range )
Glass Cooktop
Move
Anti-Tip bracket
from Position 1
(as supplied)
to Position 5
Interior Wall
BACKSPLASH ANTI -TIP INSTALLATION
DROP - IN ONLY
Backsplash
Attachment
Anchored to
Wall Stud Is
Recommended
Anti-Tip
Bracket
Attachment
To Engage
Bracket By 1/2"
Position #5
NonKit
Applications
1-1/2"
10 - 3/8"
Attachment
*
Wire
Cover
Wall
Stud
Glass Maintop Countertop
Surface
Cook Top
Wire Cover
Backsplas
Backsplas
Backsplas
Backsplas
Backsplash
Move Anti-Tip Brac
Move Anti-Tip Brac
Move Anti-Tip Brac
Move Anti-Tip Bracket
ket
ket
ket
for Dr
for Dr
for Dr
for Drop-IN with this
op-IN with this
op-IN with this
op-IN with this
Move Anti-Tip Bracket
(See Fig. 2)
5-Screws Supplied
(2 - each end
1 - in the middle)
Drop-In Only
Probleemoplossing GE JXS37WW
Als je de handleiding al zorgvuldig hebt gelezen maar geen oplossing voor je probleem hebt gevonden, vraag dan andere gebruikers om hulp
Specificaties
| Merk: | GE |
| Categorie: | Fornuis |
| Model: | JXS37WW |