Indesit
Wasmachine
BDE 96435 WKV SPT
Indesit BDE 96435 WKV SPT Handleiding
Hier is de Indesit BDE 96435 WKV SPT (Wasmachine) gebruikershandleiding. 21 pagina's in taal met een gewicht van 4,456,140.0 Mb. Als u geen antwoorden op uw probleem kunt vinden Vraag het onze community.
Pagina 1/21

ES
Manual de instrucciones
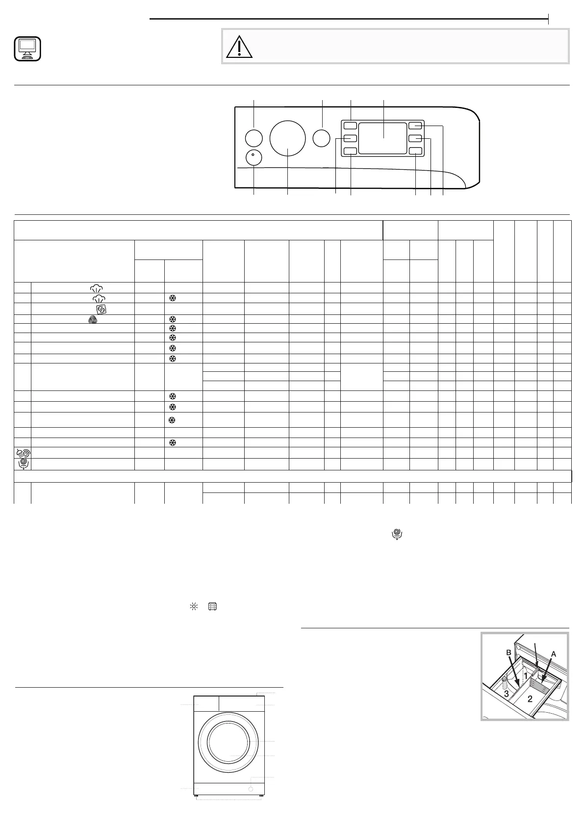
PANEL DE CONTROL
1. Botón ON/OFF
2. Botón y piloto START/PAUSE
3. Botón TEMPERATURA
4. PANTALLA
5. Botón OPCIONES
6. Botón SOLO SECADO
7. Botón SECADO
8. Botón COMIENZO RETRASADO
9. Botón CENTRIFUGADO
10. MANDO DE PROGRAMAS
11. Botón PUSH & GO
TABLA PROGRAMAS
DESCRIPCIÓN DEL PRODUCTO
1.
3.
2.
5.
4.
7.
6.
8.
1. Supercie de trabajo
2. Contenedor de detergentes
3. Panel de control
4. Tirador
5. Puerta
6. Bomba de desagüe (detrás del zócalo)
7. Zócalo (amovible)
8. Pies regulables (2)
CONTENEDOR DE DETERGENTES
GRACIAS POR ADQUIRIR UN PRODUCTO INDESIT
Para recibir una asistencia más completa,
registre su producto en
www.indesit.com/register
Antes de usar el aparato, lea atentamente las Instrucciones de seguridad.
Antes de utilizar la lavasecadora, deberá quitar los tornillos de transporte. Si desea más
información sobre cómo quitarlos, consulte la Guía de Instalación.
Compartimento 1:
Não coloque detergente neste recipiente.
Compartimento 2: Detergente para lavado (en
polvo o líquido)
Si se utiliza detergente líquido, se aconseja
colocar el tabique divisorio A suministrado con la
máquina, para una correcta dosicación.
Cuando utilice detergente en polvo, vuelva a
colocar el tabique divisorio en la cavidad B.
Compartimento 3: Aditivos (suavizante, etc.)
El suavizante no debe superar el nivel “máx”
indicado en el perno central.
! El cajón del detergente solo es apto para detergente líquido y en polvo.
No admite cápsulas de lavado.
La cápsula de lavado debe colocarse en el tambor antes de la carga.
Asegúrese de utilizar la cantidad correcta de cápsula de lavado
recomendada por el fabricante.
! Utilice detergentes en polvo para prendas de algodón blancas, para el
prelavado y para lavados con una temperatura mayor que 60ºC.
! Respete las indicaciones que se encuentran en el envase de detergente.
! Para extraer el cajón, presione la palanca C y tire hacia afuera.
C
1
10
2 3
5
89
11
4
6
7
Carga máxima 9 kg
Potencia absorbida en off -mode 0.5 W / en left-on mode 8 W
Detergentes y
aditivos
Detergente
recomendado
Humedad resi-
dual % (***)
Consumo de
energía kWh
Agua total litros
Temperatura de
lavado °C
Programa
Temperatura
Centrífuga
máxima
(rpm)
Carga
máxima
por el
lavado (kg)
Duración
(h : m)
Secado
Carga
máxima
por el
secado (kg
Lava-
do
Suavi-
zante
Polvo
Líquido
Cápsulas
(4)
Ajustes Rango
2 3
1
Mixtos
30 °C 30 °C 1200 3.5
** – –
–
– – – – –
2
Camisas
40 °C
- 40 °C
600 2
** – –
–
– – – –
3
Cápsulas
30 °C 30 °C 1000 4.5
** – – –
– –
– – – –
4
Lana
40 °C
- 40 °C
800 2 **
2
–
–
– – – –
5 20°C 20 °C
- 20 °C
1400 9 1:50
6
–
–
49 0.160 90 22
6 Algodón (2) 40 °C
- 60 °C
1400 9 3:55
6
49 1.400 105 45
7 Sintéticos (3) 40 °C
- 60 °C
1200 4 2:55
4
35 0.800 55 43
8 Mixtos 40 °C
- 40 °C
1000 9 **
6
–
– – – –
9
Eco 40-60 (1)
(Lavado)
40 °C 40°C
1351 9 3:48
6
53 0.800 59 35
1351 4.5 2:54
53 0.590 57 34
1351 2.5 2:25
53 0.345 38 26
10 Blanco 60 °C
- 90 °C
1400 9 2:45
6
49 0.900 90 55
11 Rápido 15 min 20 °C
- 20 °C
1200 (****) 1.5
** – –
–
– – – – –
12
Rápido 45 min Carga
Completa
40°C
- 40°C 1200 9 ** – –
–
–
– – – –
13 Lavado y Secado 45min 30 °C 30 °C 1400 1 **
1
–
– – – – –
14 Delicados 30°C 30 °C
- 30 °C
600 (****) 1 **
1
–
– – – – –
Aclarado & Centrif. – – 1400 9 **
6 –
– – – – – – –
Centrif. & Drenaje * – – 1400 9 **
6 – – – – – – – – –
Dosis requerida Dosis opcional - 4) Se recomienda una temperatura mínima de 30 °C para el uso de cápsulas de lavado.
9
Eco 40-60 (5)
(Lavado y Secado)
40 °C 40 °C
1351 6 9:20
6
– 0 3.800 75 33
1351 3 5:10
3
– 0 1.980 47 32
Para todos los institutos de prueba:
2) Programa algodón largo: seleccionar el programa 6 con una temperatura de 40°C.
3) Programa sintético largo: seleccionar el programa 7 con una temperatura de 40°C.
* Si se selecciona el programa y se excluye la centrífuga, la máquina efectúa sólo el
drenaje.
** Se puede controlar la duración de los programas de lavado en el display.
*** Después del n del programa, con centrifugado a la máxima velocidad seleccionable, en
conguración de default.
**** La pantalla mostrará la velocidad de centrifugado sugerida como valor predeterminado.
La duración del ciclo que se indica en el visor o en el manual es una estimación calculada
en base a condiciones estándar. El tiempo efectivo puede variar en función de numerosos
factores como la temperatura y la presión del agua de entrada, la temperatura ambiente,
la cantidad de detergente, la cantidad y el tipo de carga, el equilibrado de la carga y las
opciones adicionales seleccionadas. Los valores dados para programas que no sean
Eco 40-60 son sólo indicativos
1) Eco 40-60 (Lavado) - Ciclo de lavado según el reglamento Ecodesign de la UE
2019/2014. El programa más eciente en términos de consumo de agua y energía para el
lavado de prendas de algodón con suciedad normal.
Nota: los valores de velocidad de centrifugado visualizados pueden diferir ligeramente de
aquellos indicados en la tabla.
5) Eco 40-60 (Lavado y Secado) - Ciclo de lavado y secado según el reglamento
Ecodesign de la UE 2019/2014. Para acceder al ciclo de “lavado y secado”, seleccione el
programa de lavado “Eco 40-60” y ajuste el nivel de la opción en . El programa más
eciente en cuanto a consumo de agua y energía para el lavado y secado de prendas
de algodón con suciedad normal. Al nalizar el ciclo, las prendas se pueden guardar
directamente en el armario.
Probleemoplossing Indesit BDE 96435 WKV SPT
Als je de handleiding al zorgvuldig hebt gelezen maar geen oplossing voor je probleem hebt gevonden, vraag dan andere gebruikers om hulp
Specificaties
| Merk: | Indesit |
| Categorie: | Wasmachine |
| Model: | BDE 96435 WKV SPT |