Remeha
Verwarming
ZONNEBOILERAANSLUITSET
Remeha ZONNEBOILERAANSLUITSET Handleiding
Hier is de Remeha ZONNEBOILERAANSLUITSET (Verwarming) gebruikershandleiding. 2 pagina's in taal Nederlands met een gewicht van 0.1 Mb. Als u geen antwoorden op uw probleem kunt vinden Vraag het onze community.
Pagina 1/2

1
ZONNEBOILERAANSLUITSET
Inhoud van de set
De aansluitset bestaat uit de volgende componenten:
- behuizing voor doorstroombegrenzer
- behuizing voor stromingsschakelaar (alleen nodig bij
Remeha Selecta)
- temperatuurbestendige stromingsschakelaar type
VK315 MO (tapdrempel 1,8 l/min)
- mengventiel type 52-6042 (15 mm knelkoppeling)
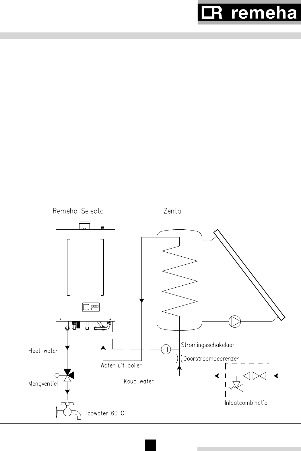
Hydraulische aansluiting op Remeha combiketels
Sluit de zonneboiler aan op Remeha Selecta,
Quinta 25/30c of W21/28c ECO volgens Afb. 01 of
Afb. 02. Pas op met het toepassen van extra afsluiters.
Het afsluiten van de zonneboiler kan ernstige schade
aan het systeem veroorzaken.
Verplaatsen doorstroombegrenzer
De in de Remeha Selecta, W21/W28c ECO of Quinta
25/30c gemonteerde doorstroombegrenzer dient te
worden verplaatst. Voor de positie hiervan: raadpleeg de
desbetreffende keteldocumentatie.
Vervolgens wordt de doorstroombegrenzer (tussen
twee ringen) in de behuizing geplaatst en opgenomen
in de installatie. Let op dat de stromingsrichting door de
begrenzer correct is (zie Afb. 03).
Stromingsschakelaar
- Quinta 25/30c en W21/28c ECO: vervang de
oorspronkelijke stromingsschakelaar door de mee-
geleverde, temperatuurbestendige.
- Selecta: bouw de stromingschakelaar in in de koud-
waterleiding naar de zonneboiler. Electrisch komt
de stromingsschakelaar in de plaats van de sensor
op de tapwaterwarmtewisselaar. Zie hiervoor ook de
beschrijving in de technische informatie van de
Selecta. Tevens dient u bij de Remeha Selecta met
behulp van een PC of de universele servicetool GST
1400 van Honeywell, de parameter ‘p’ in het service-
niveau, om te zetten van ‘sensor’ naar ‘stromings-
schakelaar’, zie betreffende keteldocumentatie.
Let op: De pijl op de stromingsschakelaar geeft de
stromingsrichting aan.
Afb. 01 Hydraulische aansluiting op de Remeha Selecta
afbeelding 01
Probleemoplossing Remeha ZONNEBOILERAANSLUITSET
Als je de handleiding al zorgvuldig hebt gelezen maar geen oplossing voor je probleem hebt gevonden, vraag dan andere gebruikers om hulp
Specificaties
| Merk: | Remeha |
| Categorie: | Verwarming |
| Model: | ZONNEBOILERAANSLUITSET |