Panduit
Niet gecategoriseerd
S52SPS
Panduit S52SPS Handleiding
Hier is de Panduit S52SPS (Niet gecategoriseerd) gebruikershandleiding. 2 pagina's in taal Engels met een gewicht van 0.4 Mb. Als u geen antwoorden op uw probleem kunt vinden Vraag het onze community.
Pagina 1/2

FOR TECHNICAL SUPPORT www.panduit.com/resources/install_maintain.asp
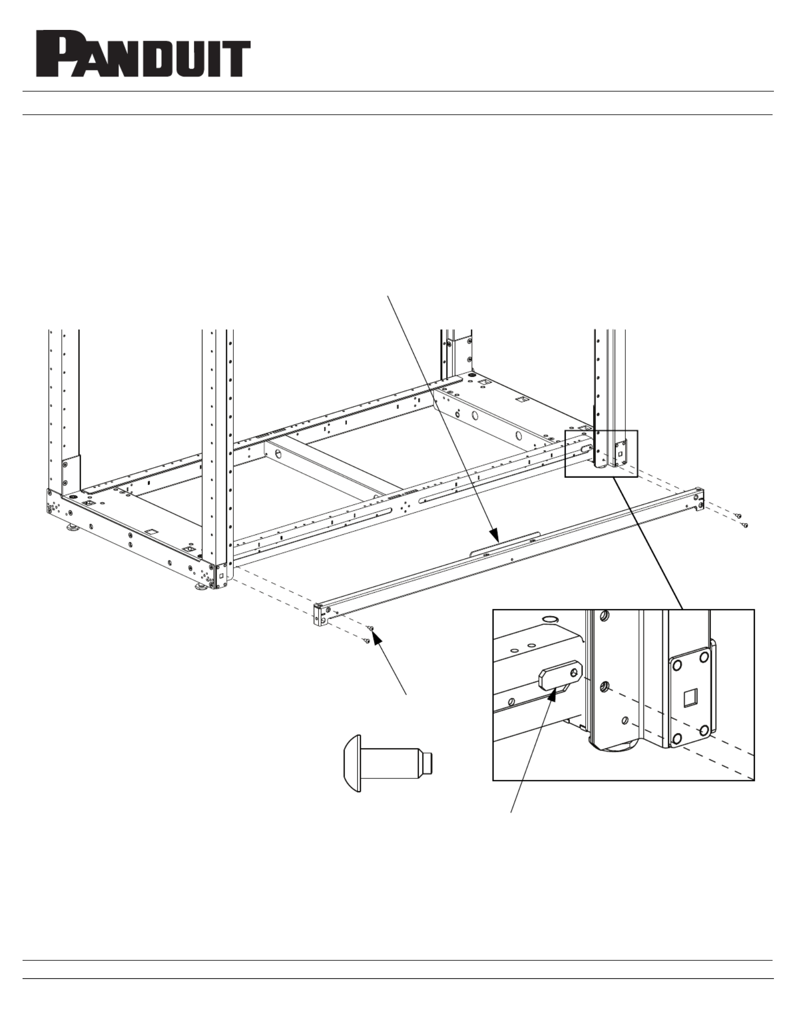
INSTALLATION INSTRUCTIONS
© Panduit Corp. 2014 V00029CC Rev. 02
Page 1 of 2
N
ET
-A
CCESS
S-Type Server Cabinets
(Side Panels - S21SPSE, S51SPSE, S22SPSE, S52SPSE,
S81SPSE, S82SPSE, S11SPSE, S12SPSE)
Side Panel Support Bracket Installation
-Secure Side Panel Support Bracket to cabinet frame with [4] M5 Torx Screws
[4] M5 x 12mm Screws
(use T25 Torx bit)
[2] Nut Plates
Side Panel Support Bracket
Probleemoplossing Panduit S52SPS
Als je de handleiding al zorgvuldig hebt gelezen maar geen oplossing voor je probleem hebt gevonden, vraag dan andere gebruikers om hulp
Specificaties
| Kleur van het product: | Zwart |
| Breedte: | 1114.9 mm |
| Hoogte: | 2100.4 mm |
| Soort: | Zijpaneel |
| Materiaal behuizing: | Metaal |
| Duurzaamheidscertificaten: | RoHS |
| Aantal per verpakking: | 1 stuk(s) |
| Rackcapaciteit: | 45U |