Panduit
Niet gecategoriseerd
C2FAB06A1200B1
Panduit C2FAB06A1200B1 Handleiding
Hier is de Panduit C2FAB06A1200B1 (Niet gecategoriseerd) gebruikershandleiding. 1 pagina's in taal met een gewicht van 181,584.0 Mb. Als u geen antwoorden op uw probleem kunt vinden Vraag het onze community.
Pagina 1/1

INSTRUCTIONS V00029BV
© Panduit Corp. 2013
FOR TECHNICAL SUPPORT www.panduit.com/resources/install_maintain.asp
N
ET
-A
CCESS
N-Type & S-Type Cabinets
(Front and Rear Floor Seals - C2FAB06A1200B1, C2FAB07A1200B1,
C2FAB08A1200B1
)
Page 1 of 1
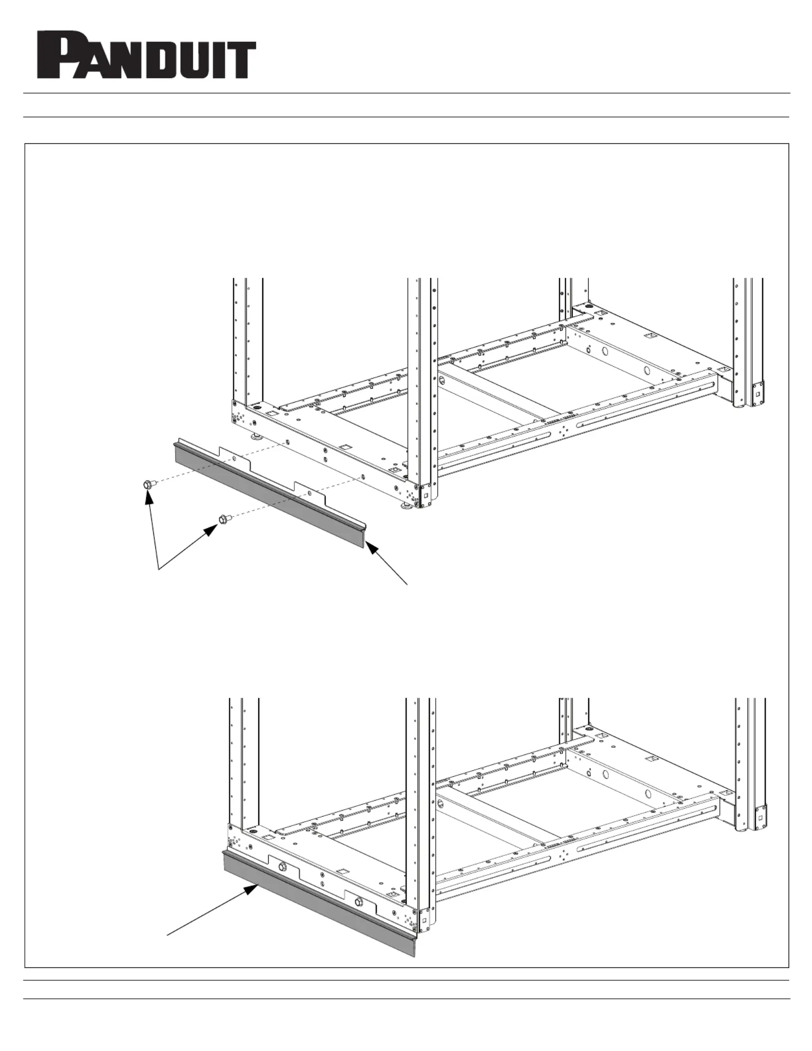
Front and Rear Floor Seal Installation
• Install Floor Seal to front or rear of cabinet frame using (2) M10x20mm Bolts. (Flange on floor seal will face outward away from the
cabinet.)
[2] M10x20mm Bolts
(use 15mm socket wrench)
Floor Seal
Floor Seal (installed)
Probleemoplossing Panduit C2FAB06A1200B1
Als je de handleiding al zorgvuldig hebt gelezen maar geen oplossing voor je probleem hebt gevonden, vraag dan andere gebruikers om hulp
Specificaties
| Kleur van het product: | Zwart |
| Breedte: | 594 mm |
| Hoogte: | 83 mm |
| Duurzaamheidscertificaten: | RoHS |